NEW

茅ヶ崎市松風台 戸建て A号棟[新築戸建て]

  • 所在地茅ヶ崎市松風台
  • 交通(1)JR相模線「香川」駅徒歩15分
    (2)JR東海道線「茅ケ崎」駅バス16分「松風台」停歩2分
    (3)湘南新宿ライン高海「茅ケ崎」駅バス16分「松風台」停歩2分
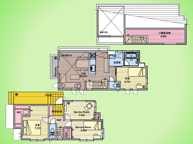
  • 間取り2SLDK
  • 築年2025年12月

齋藤 大輔

この物件のおすすめポイント

駐車スペース2台可(車種による) 完成済みにつき内覧・即時引渡し可能 居室としても使える広さのサービスルームあり 主寝室にはウォークインクローゼット付き 都市ガス

○間取り図○

○間取り図○

  • ○間取り図○

    ○間取り図○

  • 茅ヶ崎市立香川小学校 距離約560m

    茅ヶ崎市立香川小学校 距離約560m

  • 茅ヶ崎市立鶴が台中学校 距離約1040m

    茅ヶ崎市立鶴が台中学校 距離約1040m

物件概要

交通 (1)JR相模線「香川」駅徒歩15分
(2)JR東海道線「茅ケ崎」駅バス16分「松風台」停歩2分
(3)湘南新宿ライン高海「茅ケ崎」駅バス16分「松風台」停歩2分
所在地 茅ヶ崎市松風台
間取り 2SLDK 土地面積 110.16m²(実測)
建物面積 86.33m²(実測) 建物構造 木造
地目 宅地 都市計画 市街
用途地域 第一種低層住居専用地域
建ぺい率 50%
容積率 100% 引き渡し時期 即時
土地権利 所有権 現状 完成済
私道面積 階建 地上2階
建築確認番号 セットバック 不要
取引態様 仲介 管理番号 002611800A
設備 都市ガス/公営水道/下水排水/給湯/インターホンTV/フローリング/収納/システムキッチン/バルコニー/対面キッチン/追焚給湯/温水洗浄便座/浴室換気乾燥機/床下収納/クローゼット/バリアフリー/ウォークインクローゼット/駐車場/駐車場2台/グルニエ/ペアガラス/24時間換気システム/トイレ2ヶ所/オートバス/コンロ3口/バス・トイレ別/洗面台独立/脱衣所あり/シューズボックス/リビングダイニング15畳以上/小学校まで1km以内/グリル/浴室暖房/全居室フローリング/リビング階段/浴室に窓/屋根裏収納/小学校徒歩10分以内/整形地
備考 景観法
情報更新日 2026-04-15 次回更新予定日 随時

MAP

この物件をご覧になられた方はコチラの物件も見ています

ページトップへ